Boynton Beach CRA - FL
Home MenuUSPS DOWNTOWN STATION PROJECT
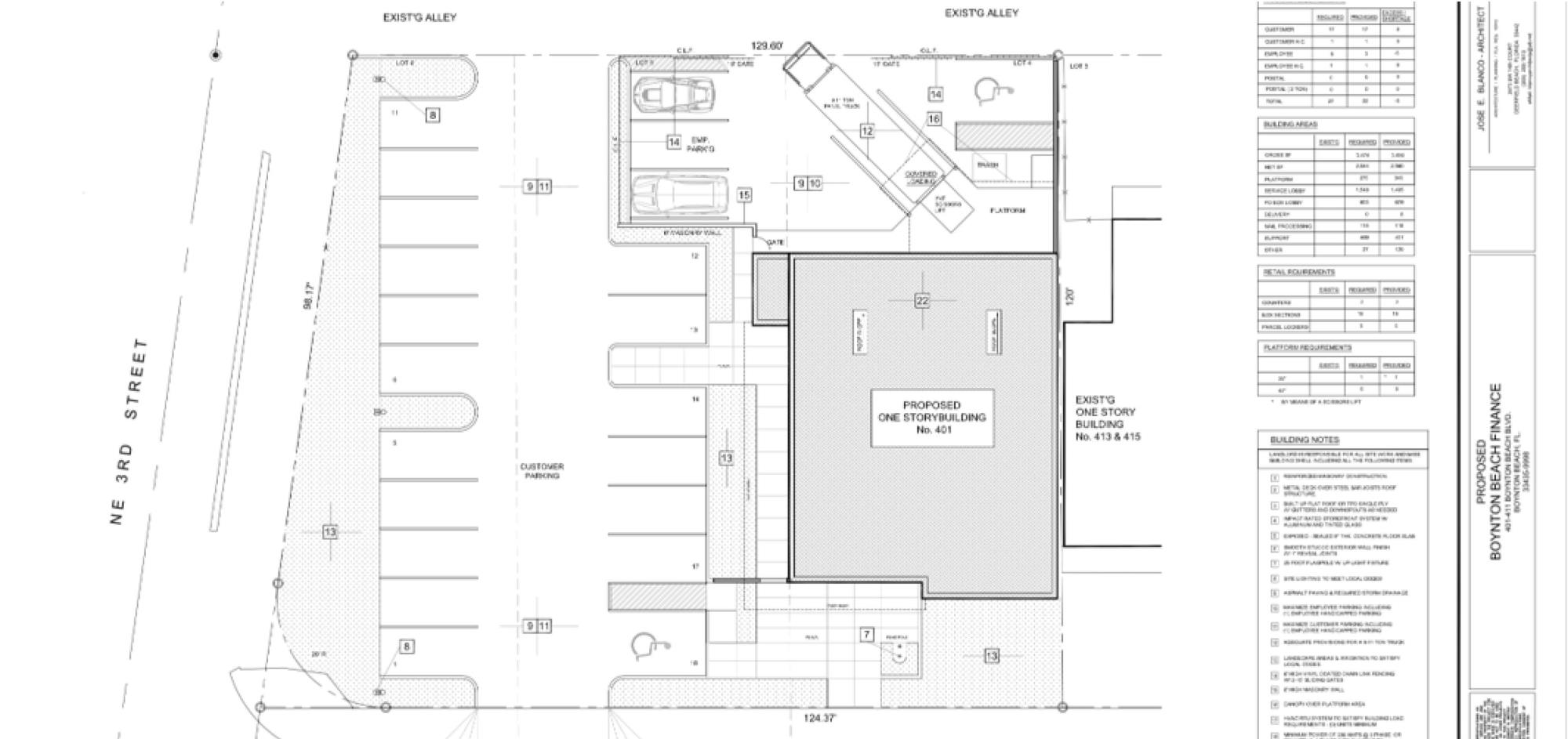
401-411 E. Boynton Beach Boulevard Redevelopment Project
- PROJECT LOCATION: 401-411 E. Boynton Beach Redevelopment Project
- BBCRA DISTRICT: Boynton Beach Boulevard
- DEVELOPER(s): Maple Tree Investments LLC
- BBCRA FUNDING:
- ACQUISITION: $917,000
- PURCHASE AND DEVELOPMENT AGREEMENT: $817,000
PROJECT DESCRIPTION:
The BBCRA acquired these three parcels located on E. Boynton Beach Boulevard to spur redevelopment opportunities within the Boynton Beach Boulevard District in accordance with the BBCRA Community Redevelopment Plan.
The combined properties total approximately 0.38 of an acre and is currently zoned C-3 (Community Commercial) with a Local Retail Commercial (LRC) Future Land Use Classification. The BBCRA Community Redevelopment Plan identifies this area as a Mixed-Use High land use designation for future redevelopment with a maximum density of 60-80 du/ac, a maximum height of 100 feet, and an additional 25% Workforce Housing Density Bonus through participation in the City's Workforce Housing Program.
At the June 14, 2022 meeting, the BBCRA Board made a motion to draft an RFP/RFQ in accordance with the Letter of Intent received from the U.S. Postal Service. On September 30, 2022, the BBCRA issued an RFP/RFQ for the United States Postal Service Boynton Beach Downtown Station Project. The RFP/RFQ submission deadline was November 29, 2022.
At the May 9, 2023 meeting, the Board made a motion to terminate the RFP/RFQ and at the July 11, 2023 meeting, the Board made a motion to re-release a revised RFP/RFQ on July 28, 2023. Presentations to the BBCRA Board were made at the December 12, 2023 meeting. At the meeting, the Board made a motion to enter into negotiations with Maple Tree Investments, LLC for the development of the site and on November 21, 2024 the Board approved the Purchase & Development Agreement.
In October 2025, Maple Tree Investments submitted the site plan application and will begin the development review process with the City.
